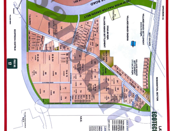
Greater Noida Authority-7 1 year ago Greater Noida Authority 0 mythicwebagency@gmail.comView Listings Hello, I am interested in [Greater Noida Authority-7] I'm a buyer I'm a tennant I'm an agent Other By submitting this form I agree to Terms of Use Send Message